← Back
⚠️

Basement / Semi-basement — not suitable for standard residential buy-to-flip investment.

€114,300

2.0/10

€2,485/m²

3
Rooms
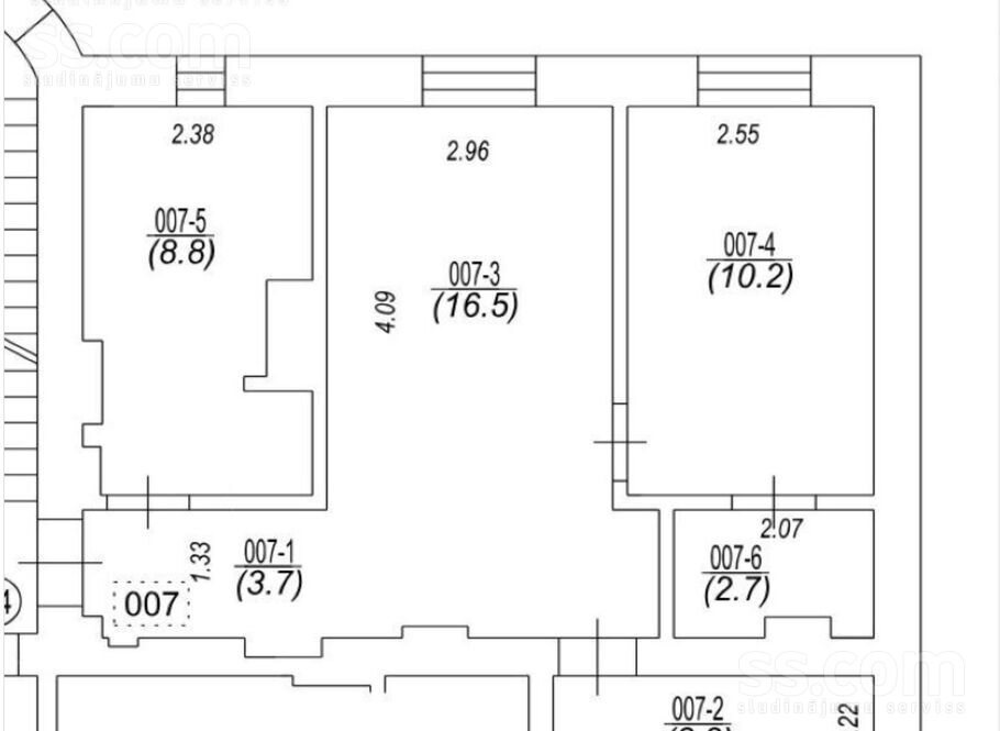
46.0m²
Area
1/3
Floor

Details

Location Centrs, Ēveles 1
Building type Renov.
Published 24.02.2026 0d

Description

Pagalma mājā kluss, saulains dzīvoklis renovētas mājas 1. stāvā. Dzīvojamā istaba apvienota ar virtuves un priekšnama zonām, divas guļamistabas, vannas istaba, garderobes telpa. Vietas skapjiem viesistabā, guļamistabā un priekšnamā. Parkets, restaurētas durvis. Centrālā apkure ar siltuma patēriņa skaitītājiem. Zem mājas koplietošanas pagrabs. Logi uz austrumu pusi. Ir iespējams tikt pie automašīnas vietas pagalmā.Дом находится во дворе. Квартира расположена на 1 этаже отреставрированного дома, она тихая, солнечная. Гостиная объединена с кухней и прихожей, две спальни, ванная комната, гардеробная. Места для шкафов в гостиной, спальне и прихожей. Паркет, восстановленные двери. Центральное отопление с счетчиками расхода тепла. Общий подвал под домом. Окна на восточную сторону. Есть возможность получить парковочное место во дворе.Pilsēta:RīgaRajons:centrsIela:Ēveles 1[Karte]Istabas:3Platība:46 m²Stāvs:1/3Sērija:Renov.Mājas tips:MūraĒrtības:Parkošanas vietaCena:114 300 € (2 484.78 €/m²)

🤖 AI Analysis

24 Feb 2026
2.0
Deal Score
2
Reno Potential

📸 Photo Assessment

The apartment appears to be recently and tastefully renovated with modern finishes. Features include herringbone parquet flooring, restored ornate doors, clean painted walls with accent colors, and a contemporary bathroom with a walk-in shower.

📋 Analyst Notes

This apartment is already well-renovated, making it less suitable for an investor focused on significant renovation ROI. While the price per m² is slightly below general Riga Centre averages for renovated properties (€2,500-€3,000+), the existing high-quality renovation limits profit from further improvements. It could be attractive for a quick resale if the market appreciates, but not for a value-add renovation strategy. The good condition and location earn it a decent deal score despite low reno potential.

🚩 Red Flags

no immediate renovation potential for a value-add investor

Tags

move_in_ready good_floor no_balcony centrs quiet_street period_building good_natural_light basement