← Back

€50,000

5.4/10

€1,471/m²

1
Rooms
34.0m²
Area
2/3
Floor

Details

Location Centrs, Lugažu 14A
Building type Renov.
Published 03.02.2026 25d
🌡️ Central heating
📍 Location

Description

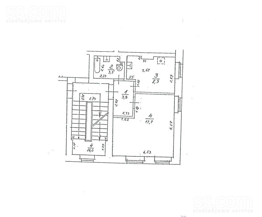
Kluss, saulains dzīvoklis 20 gadus atpakaļ renovētas mājas 2, stāvā. Logi pagalma virzienā. 18 kv. m. istaba, 8 kv. m. virtuve, 3, 5 kv. m. sanmezgls, 4 kv. m. koridors. Stikla pakešu logi, visas ērtības. Pagalmā var novietot auto.Тихая, солнечная квартира на 2-м этаже дома, отремонтированного 20 лет назад. Окна выходят во двор. Комната 18 кв. м. , кухня 8 кв. м. , санузел 3, 5 кв. м. , коридор 4 кв. м. Стеклопакеты, все удобства. Во дворе можно парковать автомобиль.Pilsēta:RīgaRajons:centrsIela:Lugažu 14a[Karte]Istabas:1Platība:34 m²Stāvs:2/3Sērija:Renov.Mājas tips:MūraCena:50 000 € (1 470.59 €/m²)

🤖 AI Analysis

27 Feb 2026
5.4
Deal Score
7
Reno Potential
19%
Est. ROI

📸 Photo Assessment

The apartment photos show an empty room with basic finishes, confirming it's a renovation project. The listing mentions 'Mūra' (masonry) for the house type and a renovation 20 years ago, suggesting a solid pre-war building, though no exterior photos are provided to confirm facade or entrance quality. Windows face the courtyard.

📋 Analyst Notes

This apartment is located in Centrs, a desirable district for premium renovations. The building type is described as 'Mūra' (masonry), which typically means a solid pre-war construction, ideal for our investor. The size (34m²) is below ideal, incurring a -1.5 deal_score penalty. With no elevator, being on the 2nd floor of 3 is acceptable. The lack of local comparable data requires using a conservative estimate for premium renovated sales price in Centrs, set at €2500/m². This results in an estimated ROI of 19.46%, placing it in the acceptable range despite the size limitation. The Davis feedback pattern is for much larger apartments, so it does not apply here.

Tags

solid_prewar renovation_needed centrs quiet_street good_natural_light good_floor small_apartment

✍️ Your Feedback

📊 Comparable Properties (1 within 500m)

Avg: €3,085/m² — used for ROI calculation