← Back

€145,000

7.5/10

€1,726/m²

3
Rooms
84.0m²
Area
3/6
Floor

💰 ROI Analysis

Purchase price €145,000
Renovation cost (~€700/m²) €58,800
Total investment €203,800
Comp avg €/m² (4 listings within 500m) €1,906/m²
Projected sale (84.0m² × €1,906) €160,131
Estimated profit / ROI €-43,669 / -21%

AI-estimated ROI: 3%

Details

Location Centrs, Ganību d. 15
Building type P. kara
Published 10.02.2026 14d
📍 Location

Description

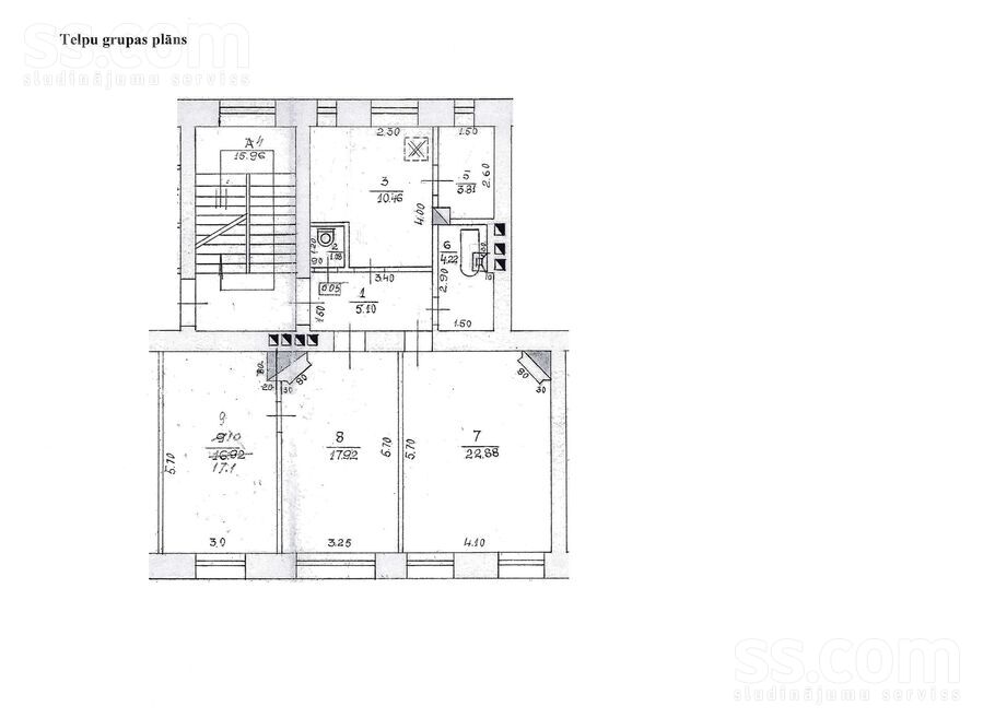
Dzīvoklis pēc pilnīgas renovācijas. Zeme ir īpašumā. Visā mājā nomainītas kanalizācijas caurules, ūdensvadi un elektrības vadi. Dzīvoklī ir 380 V pieslēgums. Uzstādīti koka stikla pakešu logi. Logi vērsti uz abām mājas pusēm. Griestu augstums ir 3, 25 m. Krāsni bīja pilnībā demontēta, modernizēta un samontēta ar jaunām iekšām, ko veica Latvijas meistari. Visi krāsns dekoratīvie elementi ir nokrāsoti baltā gruntskrāsā un tos var pārkrāsot, lai tie atbilstu jūsu jaunā dzīvokļa kopējai krāsu gammai. Jūsu komfortam Uz baterijām ir uzstādīti termostati. Ērtībai ir uzstādīti slēdži ar apgaismojumu. Dzīvoklī ir ievilkts optiskais kabelis internetam. Lai nodrošinātu labāku skaņas izolāciju, ir uzstādītas dubultās koka durvis. Dzīvoklī ir divas vannas istabas, no kurām pirmajā ir dušas kabīne, otrajā ir vanna. Sanmēzglos ir elektriskās apsildāmās grīdas ar viedajiem termostatiem. Karstais ūdens no 100 litru boilera. Mājas pagalmā ir autostāvvietas (viena autostāvvieta maksā 40 eiro mēnesī). Māju apsaimnieko biedrība "Ganību Dambis 15". Zemi komunālie maksājumi. 2025.gads janvāris -200, 23 eiro, 2025.g. februāris - 228, 82 eiro, 2025.g. aprlis - 127, 84 eiro, 2025.g. jūnijs - 92, 62 eiro.Квартира полностью отремонтирована. Земля в собственности. Во всем доме заменены канализационные и водопроводные трубы, а также электропроводка. В квартире проведено напряжение 380 В. Установлены деревянные стеклопакеты. Окна выходят на обе стороны дома. Высота потолков – 3, 25 м. Печь полностью разобрана, модернизирована и собрана с новой внутрянкой латвийскими мастерами. Все декоративные элементы печи окрашены белой грунтовкой и могут быть перекрашены в соответствии с общей цветовой гаммой вашей новой квартиры. Для вашего комфорта на батареях установлены термостаты. Для удобства установлены выключатели с подсветкой. В квартире проложен оптический кабель для интернета. Для лучшей звукоизоляции установлены двойные деревянные двери. В квартире два санузла, в первом установлена душевая кабина, во втором установлена ванна. В санузлах электрические теплые полы с термостатами. Горячая вода от бойлера объемом 100 литров. Во дворе дома есть парковочные места (стоимость одного парковочного места доп. 40 евро в месяц). Дом находится в управлении товарищества Ganību Dambis 15. Низкие коммунальные платежи. Январь 2025 г. – 200, 23 евро, февраль 2025 г. – 228, 82 евро, апрель 2025 г. – 127, 84 евро, июнь 2025 г. – 92, 62 евро.Pilsēta:RīgaRajons:centrsIela:Ganību d. 15[Karte]Istabas:3Platība:84 m²Stāvs:3/6Sērija:P. karaMājas tips:ĶieģeļuĒrtības:Parkošanas vietaCena:145 000 € (1 726.19 €/m²)

🤖 AI Analysis

23 Feb 2026
7.5
Deal Score
2
Reno Potential
3%
Est. ROI

📸 Photo Assessment

The apartment appears to be in very good, move-in-ready condition with recently renovated interiors, including polished wooden floors, freshly painted walls, and modern light fixtures. The windows are wooden double-glazed, and a modernised tiled stove is present, suggesting recent significant upgrades.

📋 Analyst Notes

This apartment has already undergone a full renovation, as stated in the description and evidenced by the photos. While the asking price per square meter is below the comparable renovated price, the significant renovation costs mean the potential ROI for a renovation-focused investor is very low. However, its excellent renovated condition and good location make it a viable 'move-in ready' purchase option for the investor, even if it doesn't fit the 'buy cheap, renovate, sell' model perfectly. The high ceilings are a plus.

Tags

move_in_ready high_ceiling good_floor no_balcony centrs parking period_building good_natural_light

📊 Comparable Properties (5 within 300m)

Avg: €1,863/m² — used for ROI calculation