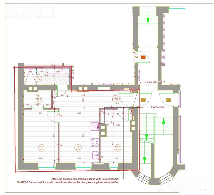
Basement / Semi-basement — not suitable for standard residential buy-to-flip investment.
€114,300
€2,485/m²
💰 ROI Analysis
AI-estimated ROI: 0%
Description
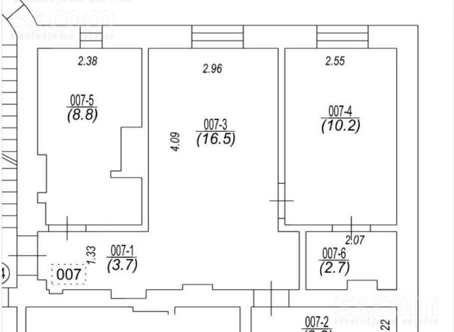
Sētas māja. Kluss dzīvoklis renovētas sētas mājas 1. stāvā. Dzīvojamā istaba apvienota ar virtuves un priekšnama zonām, 2 izolētas guļamistabas, vannas istaba, garderobes telpa. Parkets, restaurētas durvis. Centrālā apkure ar siltuma patēriņa skaitītājiem. Zem mājas koplietošanas pagrabs. Logi uz austrumu pusi.Nepieciešamības gadījumā virtuve var būt arī izolēta, to ierīkojot mazākajā no guļamistabām. Tādējādi izveidojot 2 istabu dzīvokli ar lielu viesistabu kas apvienota ar priekšnama zonu, atsevišķu virtuvi, guļamistabu ar vietu lielam skapim, plašu vannas istabu.Ir iespējams tikt pie automašīnas vietas pagalmā.Тихая квартира на первом этаже отремонтированного дома. Гостиная объединена с кухней и прихожей, 2 изолированные спальни, ванная комната, гардеробная. Паркет, отреставрированные двери. Центральное отопление с счетчиками тепла. Под домом общий подвал. Окна выходят на восток. Есть возможность получить место для автомобиля во дворе.Pilsēta:RīgaRajons:centrsIela:Valdemāra 72[Karte]Istabas:3Platība:46 m²Stāvs:1/3Sērija:Renov.Mājas tips:MūraĒrtības:Parkošanas vietaCena:114 300 € (2 484.78 €/m²)
🤖 AI Analysis
23 Feb 2026📸 Photo Assessment
The apartment appears to be recently and tastefully renovated with new herringbone parquet flooring, freshly painted walls (some accent walls), and updated lighting fixtures. The doors also look restored or new. No obvious signs of wear or damage are visible.
📋 Analyst Notes
This apartment is already well-renovated, leaving little to no renovation potential for our investor's strategy of buying cheap and renovating. While the price per square meter is slightly above the nearby renovated average, the overall quality suggests it's a 'move-in ready' property. The ROI for a renovation-focused investor is negligible, but it's a good quality apartment in a desirable area. The investor may consider it if they are looking for a 'quick flip' without major works.
Tags
📊 Comparable Properties (10 within 300m)
Avg: €2,489/m² — used for ROI calculation