← Back

€82,000

2.0/10

€2,103/m²

2
Rooms
39.0m²
Area
1/5
Floor

💰 ROI Analysis

Purchase price €82,000
Renovation cost (~€700/m²) €27,300
Total investment €109,300
Comp avg €/m² (19 listings within 500m) €1,926/m²
Projected sale (39.0m² × €1,926) €75,130
Estimated profit / ROI €-34,170 / -31%

AI-estimated ROI: -30%

Details

Location Centrs, Matīsa 101
Building type Renov.
Published 17.02.2026 7d
📍 Location

Description

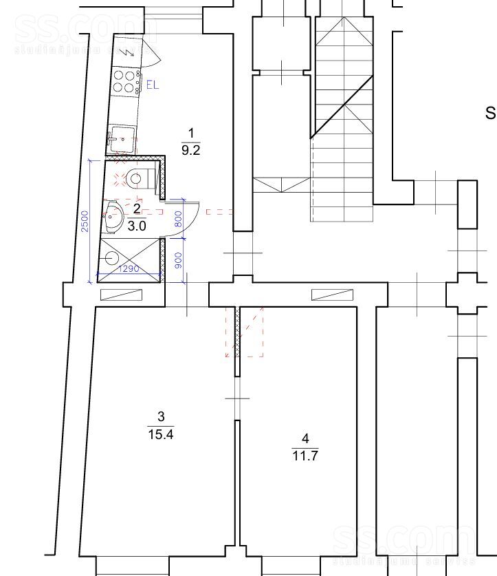
Pārdošanā 2 istabu dzīvoklis Rīgas centrā renovētā mājā.Dzīvokļa dzīvojamā platība 39, 3 m2. Virtuves zona ir savienota ar priekštelpu, veidojot 9, 2 m2 lielu telpu ar 2, 60m augstiem griestiem. Virtuves iekārta jau ir uzstādīta un aprīkota ar visu nepieciešamo sadzīves tehniku – tvaika nosūcēju, elektrisko plīti, iebūvēto ledusskapi. Blakus priekštelpai ir divas dzīvojamās istabas 15, 4 m2 un 11, 7 m2 platībā. Labiekārtota vannas istaba ar kopējo platību 3, 0 m2. Apkure šajā dzīvoklī tiek nodrošināta ar siltās grīdas sistēmu.Starpsienu pīrāgs starp dzīvokļiem ir izbūvēts uz metāla profiliem ar 20mm OSB plāksni pa vidu, kas ir izolēta ar 75mm biezu akmens vates slāni no abām pusēm, un apšūta ar 2 ģipškartona kārtām no abām pusēm, kas nodrošina paaugstinātu skaņas izolāciju dzīvokļos. Savukārt iekšējās starpsienas ir izbūvētas no metāla profiliem ar 2 ģipškartona kārtām no abām pusēm un ar 50mm biezu akmens vati pa vidu.Grīdas pīrāgs vannas istabā izbūvēts ar hidroizolācijas materiāliem un keramikas flīzēm uz grīdas. Dzīvojamās telpās grīdas segums ir keramikas flīzes.Katram dzīvoklim ir paredzēti individuālie skaitītāji elektrībai, apkurei un ūdenim, kas dod iespēju pārraudzīt un kontrolēt izmaksas. Labākai skaņas un siltuma izolācijai visos dzīvokļos ir uzstādīti 3 stiklu koka logi. Dzīvokļu ārdurvis ir sertificētas ugunsdrošās koka durvis ar EI30 ugunsdrošības klasi.Mājā ir nodrošināta centrālā gāzes apkure un centralizētā ūdensapgāde un kanalizācija. Katram dzīvoklim ir 3-fāžu pieslēgums elektrotīkliem, savukārt gaismekļi, slēdži un rozetes jau ir uzstādītas.Māja atrodas klusā pilsētas daļā ar attīstītu infrastruktūru - veikali, sabiedriskā transporta pieturas, kafejnīcas atrodas dažu minūšu attālumā. Teritorija apkārt mājai ir labiekārtota ar gājēju ietvēm, apzaļumota un norobežota ar kodu vārtiem. Ieejas durvis ir pieejamas no abām mājas pusēm – gan no Matīsa ielas puses ar atslēgu, gan no pagalma puses ar kodu. Lielākai drošībai teritorijā ir apgaismojums ar kustības detektoriem un ir uzstādīta videonovērošana.Renovētas ēkas oriģinālie dekoratīvie izstrādājumi un konstrukcijas ir neatņemamas ēkas kultūrvēsturiskās vērtības sastāvdaļa. Lai nepazeminātos šīs ēkas kultūrvēsturiskā vērtība, visi vēsturiskie elementi gan ārpusē, gan iekšā tika saglabāti un atjaunoti.Pieejami vairāki dzīvokļi šajā ēkā. Lai uzzinātu cenu un vienotos par apskati, lūdzu zvaniet vai rakstiet norādītajam kontaktam.Продается 2-комнатная квартира в центре Риги в реновированном доме.Жилая площадь квартиры составляет 39, 3 м2. Кухонная зона соединена с прихожей, образуя помещение площадью 9, 2 м2 с потолками высотой 2, 60 м. Кухонный гарнитур уже установлен и оснащен всей необходимой бытовой техникой – вытяжкой, электрической плитой, встроенным холодильником. Рядом с прихожей расположены две жилые комнаты площадью 15, 4 м2 и 11, 7 м2. Благоустроенная ванная комната общей площадью 3, 0 м2. Отопление в этой квартире обеспечивается системой теплых полов.Пирог перегородок между квартирами возведен на металлических профилях с 20-мм плитой OSB посередине, которая изолирована слоем каменной ваты толщиной 75 мм с обеих сторон и обшита 2 слоями гипсокартона с каждой стороны, что обеспечивает повышенную звукоизоляцию в квартирах. В свою очередь, внутренние перегородки возведены из металлических профилей с 2 слоями гипсокартона с обеих сторон и 50-мм каменной ватой посередине.Пирог пола в ванной комнате выполнен с использованием гидроизоляционных материалов и керамической плитки. В жилых помещениях напольное покрытие керамическая плитка.Для каждой квартиры предусмотрены индивидуальные счетчики электроэнергии, отопления и воды, что дает возможность отслеживать и контролировать расходы. Для лучшей звуко- и теплоизоляции во всех квартирах установлены деревянные окна с 3-слойным остеклением. Входные двери в квартиры сертифицированные огнестойкие деревянные двери с классом огнестойкости EI30.В доме обеспечено центральное газовое отопление, централизованное водоснабжение и канализация. Каждая квартира имеет 3-фазное подключение к электросетям, а светильники, выключатели и розетки уже установлены.Дом расположен в тихой части города с развитой инфраструктурой – магазины, остановки общественного транспорта, кафе находятся в нескольких минутах ходьбы. Территория вокруг дома благоустроена пешеходными дорожками, озеленена и огорожена воротами с кодовым замком. Входные двери доступны с обеих сторон дома – как со стороны улицы Матиса (на ключе), так и со стороны двора (по коду). Для большей безопасности на территории установлено освещение с датчиками движения и ведется видеонаблюдение.Оригинальные декоративные изделия и конструкции реновированного здания являются неотъемлемой частью его культурно-историческо й ценности. Чтобы сохранить эту ценность, все исторические элементы как снаружи, так и внутри были сохранены и восстановлены.В этом здании доступно несколько квартир. Чтобы узнать цену и договориться о просмотре, пожалуйста, звоните или пишите по указанному контакту.2-room apartment for sale in the center of Riga in a renovated building.The living area of the apartment is 39.3 m2. The kitchen area is combined with the hallway, forming a 9.2 m2 space with 2.60m high ceilings. The kitchen unit is already installed and equipped with all necessary household appliances – an extractor hood, electric stove, and built-in refrigerator. Adjacent to the hallway are two living rooms with an area of 15.4 m2 and 11.7 m2. A well-equipped bathroom has a total area of 3.0 m2. Heating in this apartment is provided by an underfloor heating system.The partition wall "sandwich" between apartments is built on metal profiles with a 20mm OSB board in the middle, insulated with a 75mm thick layer of rock wool on both sides, and finished with 2 layers of plasterboard on each side, ensuring enhanced sound insulation in the apartments. Meanwhile, internal partitions are built from metal profiles with 2 layers of plasterboard on both sides and 50mm thick rock wool in the middle.The floor "sandwich" in the bathroom is constructed with waterproofing materials and ceramic tiles on the floor. In the living areas, the flooring consists of ceramic tiles.Each apartment is provided with individual meters for electricity, heating, and water, allowing for monitoring and control of costs. For better sound and thermal insulation, 3-pane wooden windows are installed in all apartments. The apartment entrance doors are certified fireproof wooden doors with an EI30 fire resistance class.The building is provided with central gas heating, centralized water supply, and sewerage. Each apartment has a 3-phase electrical connection, while light fixtures, switches, and sockets are already installed.The building is located in a quiet part of the city with developed infrastructure – shops, public transport stops, and cafes are just a few minutes away. The area around the house is landscaped with pedestrian walkways, greened, and enclosed with code-access gates. Entrance doors are accessible from both sides of the building – from Matīsa Street with a key, and from the courtyard side with a code. For added security, the territory features lighting with motion sensors and video surveillance.The original decorative elements and structures of the renovated building are an integral part of its cultural and historical value. To preserve this value, all historical elements, both interior and exterior, have been preserved and restored.Several apartments are available in this building. To find out the price and arrange a viewing, please call or write to the provided contact.Pilsēta:RīgaRajons:centrsIela:Matīsa 101[Karte]Istabas:2Platība:39 m²Stāvs:1/5Sērija:Renov.Mājas tips:MūraCena:82 000 € (2 102.56 €/m²)

🤖 AI Analysis

23 Feb 2026
2.0
Deal Score
1
Reno Potential
-30%
Est. ROI

📸 Photo Assessment

The apartment appears to be recently and fully renovated to a modern standard, featuring a new kitchen, tiled floors, clean white walls, and recessed lighting. The building exterior also looks well-maintained and recently renovated. This is a move-in ready apartment.

📋 Analyst Notes

This apartment is already fully renovated, which goes against the investor's primary strategy of buying cheap for renovation. The current price of €2,103/m² is already above the local comparable renovated average of €1,926/m². Even without further renovation, purchasing this property would result in a significant negative ROI if sold at market rates. It's not suitable for a renovation-focused investor unless acquired at a much lower price.

🚩 Red Flags

already renovated, negative ROI

Tags

move_in_ready good_floor no_balcony centrs period_building good_natural_light

📊 Comparable Properties (10 within 300m)

Avg: €1,919/m² — used for ROI calculation