← Back

€119,700

7.5/10

€1,640/m²

3
Rooms
73.0m²
Area
3/3
Floor

💰 ROI Analysis

Purchase price €119,700
Renovation cost (~€700/m²) €51,100
Total investment €170,800
Comp avg €/m² (13 listings within 500m) €3,580/m²
Projected sale (73.0m² × €3,580) €261,370
Estimated profit / ROI €90,570 / 53%

AI-estimated ROI: 21%

Details

Location Centrs, Lāčplēša 80
Building type P. kara
Published 22.02.2026 2d
📍 Location

Description

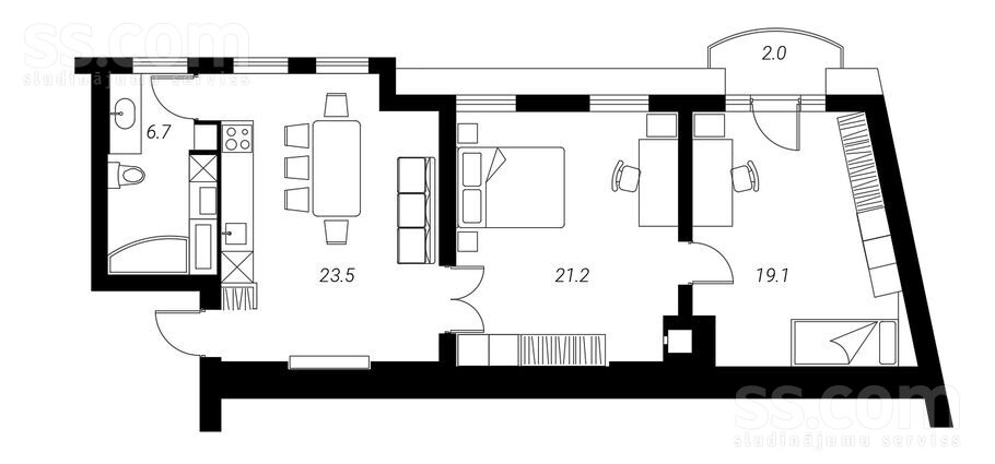
Pārdod saulainu, labi plānotu dzīvokli Rīgas centrā, Lāčplēša ielā, vēsturiskā un sakoptā mājā ar atjaunotu fasādi.Galvenās priekšrocības:Autostāvvieta pagalmāVairākas caurlaides pagalma izmantošanaiZeme īpašumāUz mājas fasādes izvietotas reklāmas, kuru ienākumi nonāk mājas renovācijas fondāNesen atjaunota mājas fasāde un veikta pamatu hidroizolācijaAutonomā gāzes apkurePapildu malkas krāsns, kas ļauj samazināt apkures izmaksasVirtuve tiek pārdota ar visu iebūvēto tehniku (ledusskapis, trauku mašīna)Veļas mašīna iekļauta cenāDzīvoklī paliek liels IKEA PAX skapis3. stāvs, nav kaimiņu virs galvas, mazāk trokšņu un putekļuDzīvokļa raksturojums:Kopējā platība 72, 5 m² + balkonsPlašas istabas ar augstiem griestiemDzīvoklis ļoti gaišs, rīta sauleKoka grīdas, nesen slīpētas un lakotasIr arhitekta skice, ja vēlas vēlas divas izolētu istabasPilsēta:RīgaRajons:centrsIela:Lāčplēša 80[Karte]Istabas:3Platība:72.50 m²Stāvs:3/3Sērija:P. karaMājas tips:ĶieģeļuKadastra numurs:01009064964Ērtības:BalkonsCena:119 700 € (1 651.03 €/m²)

🤖 AI Analysis

23 Feb 2026
7.5
Deal Score
3
Reno Potential
21%
Est. ROI

📸 Photo Assessment

The apartment appears to be recently and tastefully renovated with modern finishes, including a new kitchen, well-maintained wooden floors, and clean white walls. It shows good natural light and a generally move-in-ready condition.

📋 Analyst Notes

This apartment is already well-renovated, limiting the investor's typical 'buy cheap, renovate, sell high' strategy. However, the current price is attractive given the renovation state and comparable market values. The estimated ROI of 20.8% indicates it could still be a profitable flip, even with minimal additional renovation, meeting the investor's criteria for a high-scoring 'already renovated and cheap' apartment.

Tags

move_in_ready high_ceiling top_floor good_floor balcony centrs parking period_building good_natural_light

📊 Comparable Properties (10 within 300m)

Avg: €3,563/m² — used for ROI calculation