← Back
⚠️

Basement / Semi-basement — not suitable for standard residential buy-to-flip investment.

€110,500

1.0/10

€1,399/m²

3
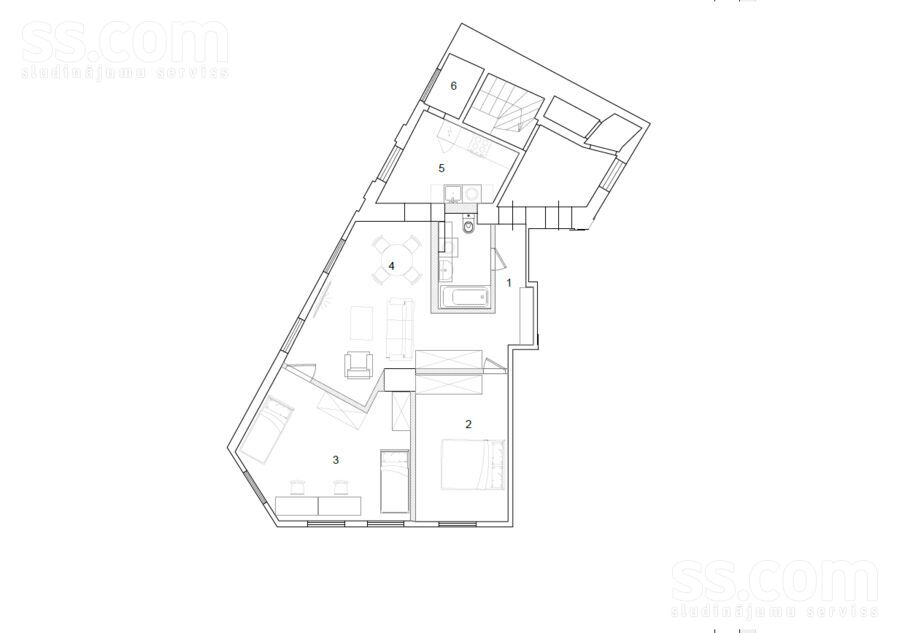
Rooms
79.0m²
Area
2/2
Floor

📊 ROI Scenarios

8%
Conservative
Sell as-is
27%
Target
€700/m²
46%
Premium
€1200/m²

💰 ROI Analysis

Purchase price €110,500
Renovation cost (~€700/m²) €55,300
Total investment €165,800
Comp avg €/m² (10 listings within 500m) €2,674/m²
Projected sale (79.0m² × €2,674) €211,238
Estimated profit / ROI €45,438 / 27%

AI-estimated ROI: -12%

Details

Location Centrs, Avotu 46
Building type Renov.
Published 03.02.2026 22d
🚗 Parking 🌡️ Central heating
📍 Location

Description

Pasteidzies, pēdējais trīsistabu dzīvoklis projektā-Pagalms 87.Dzīvoklis Nr. 3 atrodas renovētā koka mājā ar adresi Avotu iela 46 un atrodas zemajā pirmajā zemjā stavā. Dzīvoklim ir nepieciesam skapitālais remots un plānojumu var pielāgot pēc savām vajadzībām.- Visām ēkām atjaunotas fasādes, remontētas kāpņu telpas, atjaunoti jumta segumi, kā arī labiekārtots un apzaļumots iekšpagalms.- Vecās komunikācijas aizvietotas ar jaunu ūdensapgādi, kanalizācijas un apkures sistēmu.- Ēkās ierīkotas jaunas elektroinstalācijas un ievietoti mūsdienīgi trīs slāņu stikla pakešu logi, ar augstiem skaņas un siltuma izolācijas rādītājiem.- Ēku ieejas durvis slēdzamas ar koda atslēgu, kāpņutelpas izgaismotas un aprīkotas ar video novērošanas kamerām gan pie ieejas no fasādes, gan arī pie ieejas no pagalma puses.- Dzīvokļu ārdurvis nomainītas uz ugunsdrošām - atbilstoši mūsdienu tehniskajām prasībām, bet ēku vēsturiskās ārdurvis restaurētas.Pagrabstāvā izvietotas 17 privātas, 2, 6 līdz 6, 6m² plašas noliktavas mantu glabāšanai. Pagalmā ierīkotas 17 virszemes autostāvvietas un8 no tam ir aprīkotas ar modernām elektro auto uzlādes stacijām.Kompleksa teritorijā ir izveidots bērnu rotaļlaukums un atpūtas zona.Apkure- Rīgas Siltums ar skaitītājiem katram dzīvoklim.Pilnībā jaunas visas komunikācijas.Pilsēta:RīgaRajons:centrsIela:Avotu 46[Karte]Istabas:3Platība:79 m²Stāvs:2/2Sērija:Renov.Mājas tips:KokaCena:110 500 € (1 398.73 €/m²)

🤖 AI Analysis

25 Feb 2026
1.0
Deal Score
3
Reno Potential
-12%
Est. ROI

📸 Photo Assessment

The building is a renovated timber-frame structure. While the facade appears well-maintained and recently renovated (with a 'Riga Top Pilsēta 2022' plaque), the underlying timber construction is a fundamental structural concern for a premium renovation investor. The building itself looks presentable, but it is not the solid masonry type preferred.

📋 Analyst Notes

This property is a hard disqualifier due to multiple factors. Firstly, it's explicitly described as a 'renovated koka mājā' (timber-frame house), which does not align with the investor's strategy for premium, long-term value. Secondly, the apartment is located on the 'zemajā pirmajā zemjā stavā' (low first ground floor), strongly indicating a semi-basement or basement apartment, which is also a hard disqualifier. The projected ROI is negative, further diminishing its appeal.

🚩 Red Flags

timber-frame building, basement apartment

Tags

timber_building renovation_needed centrs damp_concern structural_concern basement parking

✍️ Your Feedback

📊 Comparable Properties (10 within 300m)

Avg: €1,925/m² — used for ROI calculation